La maison de vos rêves, mais vous ne le savez pas encore.
Le studio de jardin de 50m² offre une grande liberté d’aménagement ! Avec ses configurations en U, L ou carré, il permet d’imaginer 2 chambres, une grande cuisine, une vaste terrasse, de nombreuses fenêtres et des WC indépendants.
Idéal comme résidence principale ou secondaire, il garantit aussi une excellente rentabilité pour vos projets locatifs.
Aucun frais caché : tout est inclus dans votre budget, de la conception aux démarches administratives, jusqu’à l’équipement, l’aménagement, la livraison et l’installation.
10 à 15 ans
Faites place
à plus d’espace
Caractéristiques
10 à 15 ans
Structure et Extérieurs
Double vitrage renforcé au gaz argon
3 points
LED, Profilé LED
Réseau complet et conforme
• Tableau électrique
• Disjoncteur différentiel
• Disjoncteurs magnétothermiques
• Prises de courant
Intérieurs
Convecteur inclus
Système de ventilation inclus
Pompe à chaleur en option
Équipement
• Réfrigérateur top encastré
• Hotte aspirante
• Plaques de cuisson vitrocéramiques
• Évier en acier inoxydable
• Meuble niche à micro-onde
• Jusqu’à 11 meubles au choix parmi une large sélection
• WC
• Douche avec receveur
• Meuble vasque
• Vasque en céramique
• Robinetterie
• Sèche-serviettes
Procédé constructif
à définir lors de l’étude de sol
Bois massif d’épicéa + Isolation
Ossature bois massif + Isolation
Membrane EPDM
Bardage bois douglas traité classe IV
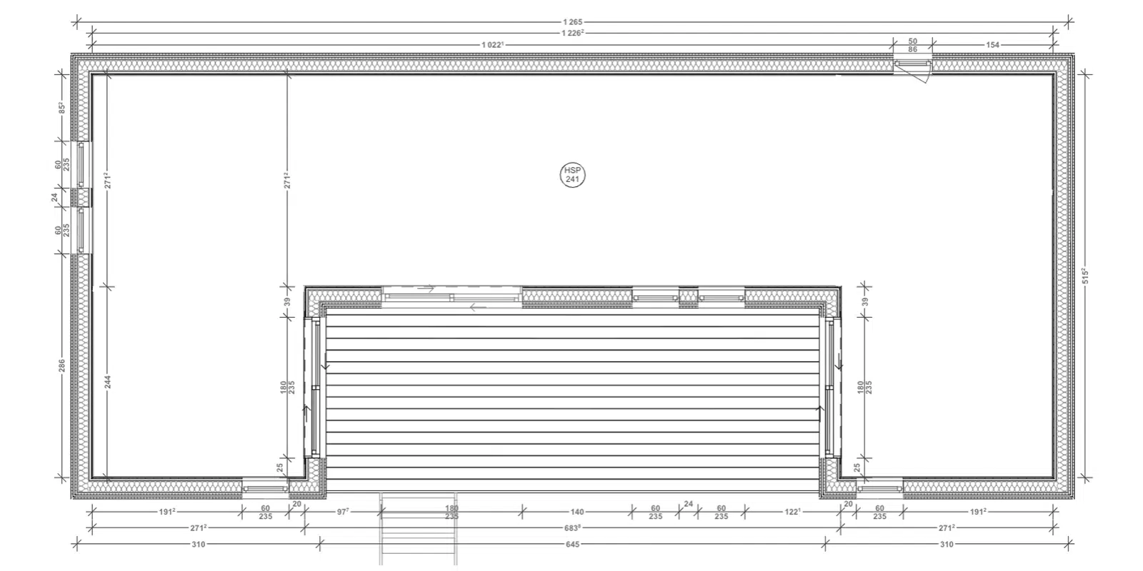
Le GK50 est le modèle le plus grand de la gamme des studios de jardin Greenkub. À 50m², la dénomination “studio de jardin” ne reflète plus la réalité du programme : c’est une maison compacte indépendante — deux chambres, un séjour généreux, une cuisine entièrement équipée, une salle de bain complète — installée dans votre jardin en 5 à 15 jours.
Cinquante mètres carrés, c’est le seuil à partir duquel le plan peut accueillir deux chambres distinctes sans contraindre les espaces de vie. La première chambre est fermée, avec penderie. La seconde — chambre d’appoint, bureau fermé ou chambre enfant — dispose de son propre espace sans empiéter sur la pièce de vie. Le séjour peut organiser simultanément un espace canapé, une table à manger pour quatre personnes et un accès dégagé vers l’extérieur. La cuisine peut être entièrement séparée du séjour si le projet le requiert.
À 50m² de surface de plancher, un permis de construire est obligatoire. Cette formalité est intégralement gérée par nos équipes dans le cadre de l’offre clé en main — constitution du dossier, dépôt en mairie, suivi de l’instruction — sans démarche de votre part.
La structure repose sur le procédé constructif Écobrique Greenkub : ossature bois massif CLT, isolation en laine de bois conforme à la réglementation RE2020, bardage douglas traité classe IV, toiture EPDM. Menuiseries à double vitrage renforcé au gaz argon. Classe énergétique A. Garantie 10 à 15 ans. Préfabriqué en atelier, installé sur votre terrain en 5 à 15 jours.
Le GK50 se destine aux projets qui ne transigent pas sur la qualité de vie : logement indépendant permanent pour un adulte ou un couple, résidence secondaire entièrement autonome et confortable, location meublée longue durée sur le segment T3, hébergement touristique haut de gamme avec deux chambres. Chaque GK50 est conçu sur mesure avec un designer d’espace Greenkub.
Ajustez selon vos envies
Terrasse et Tropézienne
Toiture double pente
Choix des menuiseries
Toiture végétalisée
Plans sur mesure
Pergola
Ouvertures supplémentaires
Revêtement de sol
Cuisine sur mesure
Accessibilité PMR
Ce studio de jardin
de 50m² est idéal pour
Réalisations
+4500 Greenkub partout en France
Construisez l'esprit libre !
Premier échange
autour de votre projet
Conception sur mesure
de votre habitat
Analyse du PLU
Prise en charges
des démarches
Visite technique
du terrain
Installation
entre 5 à 15 jours
Procédé constructif
Studio de jardin en bois :
une construction durable et performante
Une construction en ossature bois performante
Les constructions Greenkub sont réalisées avec une ossature en bois massif, alliant performance, durabilité et qualité de construction.
- Confort toute l’année grâce à une isolation en laine de bois
- Installation rapide grâce à la préfabrication en atelier
- Bois issu de forêts françaises gérées durablement
- Structure solide pensée pour durer dans le temps
Des fondations adaptées à votre terrain
Lors de la visite technique, nos équipes étudient le sol de votre terrain afin de choisir la solution la plus adaptée parmi nos différents systèmes de fondations. Cette visite est déterminante pour garantir la stabilité, l’horizontalité parfaite et la pérennité de votre Greenkub.
Nos modèles
Nous sommes vraiment ravis de Greenkub. C’était un peu mal engagé mais quel résultat. Le jeu en valait la chandelle 🤩🌟👌
Merci à vous
De votre compréhension et de votre super équipe de travail mise en place avec Nuno et son équipe , géniaux 🤩
Merci de votre attention
J’ai fait appel à Greenkub pour pouvoir loger ma maman juste à côté de chez moi.
La construction est parfaitement adaptée à ses besoins.
Tout c’est très bien passé, l’équipe qui s’en est chargé était très efficace et professionnelle.
Je suis entièrement satisfaite de toutes les équipes de Greenkub, du début à la fin.
Belle réalisation avec une équipe efficace, aimable et très professionnelle.
Un soin tout particulier est porté sur les finitions.
Excellent suivi du projet avec des interlocuteurs disponibles durant les différentes phases du projet, ce qui rassure beaucoup.
Je tenais à remercier toute l’équipe pour l’efficacité dont vous avez tous fait preuve depuis le début de l’aventure à vos côtés il y a qq mois et la remise des clés ce soir.
Nous allons à présent y mettre notre patte, mais une chose est sûre, nous allons vous recommander et allons essayer d’être des ambassadeurs à la hauteur de vos prestations. […]
Une très belle réalisation au fond de notre jardin que nous aurions dû réaliser bien plus tôt ! 🤩💥💯
1 an et demi que mon épouse m’en parlait…🤣🤦♂️
Le personnel autant dans les bureaux que sur site lors de la construction ont toujours été disponibles, agréables et très professionnels.🌈💖 Un grand bravo […]
FAQ
Le GK50 est-il adapté à un usage de résidence secondaire ?
Le GK50 est-il adapté à un usage de résidence secondaire ?
Oui — c’est l’un de ses usages les plus naturels. À 50m² avec deux chambres, le GK50 constitue une résidence secondaire entièrement autonome, comparable dans son confort à un appartement de vacances classé. Sans les contraintes d’une copropriété, sans les coûts d’entretien d’une maison traditionnelle, sur un terrain privé déjà propriété du maître d’ouvrage. Habitable à l’année, classé A, il fonctionne comme un logement ordinaire.
Quelle est la performance thermique du GK50 ?
Quelle est la performance thermique du GK50 ?
Le GK50 intègre le système constructif Écobrique Greenkub : ossature bois massif CLT associée à une isolation en laine de bois dans les parois, le sol et le plafond, conforme à la réglementation RE2020. La ventilation mécanique contrôlée garantit un renouvellement d’air optimal sans déperdition thermique. La classe énergétique A est obtenue sans système de compensation — elle résulte directement de la qualité constructive. À 50m², cette performance se traduit par des charges de chauffage très contenues comparativement à un logement traditionnel de surface équivalente.
Quelle est la durée de vie d'un GK50 ?
Quelle est la durée de vie d'un GK50 ?
Un GK50 dure aussi longtemps qu’une construction traditionnelle. L’ossature bois massif CLT, le bardage douglas traité classe IV et la toiture EPDM forment un ensemble qui tient dans le temps sans entretien structurel. Une application de lasure tous les 5 à 8 ans préserve l’aspect esthétique du bardage. Garantie décennale sur la structure, garantie contractuelle de 10 à 15 ans selon la configuration retenue.
Comment les fondations du GK50 sont-elles choisies ?
Comment les fondations du GK50 sont-elles choisies ?
Lors de la visite technique préalable, nos équipes analysent la nature du sol, la topographie et les contraintes d’accessibilité. Trois systèmes sont disponibles : pieux d’ancrage pour les sols stables et compacts, vis de fondation pour les sols argileux ou humides, dalle béton isolée pour les projets nécessitant une base rigide et une isolation par le sol renforcée. La solution retenue est communiquée avant tout engagement contractuel et est intégralement incluse dans le prix clé en main.
Quel est le prix d'une maison compacte de jardin 50m² clé en main ?
Quel est le prix d'une maison compacte de jardin 50m² clé en main ?
Le GK50 est proposé entre 118 560 € et 124 440 € TTC, pour une offre intégrant l’ensemble des prestations suivantes : conception sur mesure avec un designer d’espace Greenkub, gestion complète du permis de construire, visite technique, fondations adaptées au terrain, préfabrication, livraison, installation complète par nos équipes (5 à 15 jours), deux chambres, cuisine équipée, salle de bain complète, installation électrique conforme à la norme NF C 15-100, système de chauffage et ventilation mécanique contrôlée. La fourchette reflète les options de personnalisation retenues.
Le prix inclut-il les fondations et le permis de construire ?
Le prix inclut-il les fondations et le permis de construire ?
Oui, les deux sont inclus dans le prix clé en main. Les fondations sont dimensionnées sur la base des résultats de la visite technique préalable : pieux d’ancrage pour les sols stables et compacts, vis de fondation pour les sols argileux ou humides, dalle béton isolée pour les projets nécessitant une base rigide et une isolation par le sol renforcée. Le permis de construire est géré intégralement par nos équipes sans frais supplémentaires.
Peut-on rentabiliser un GK50 en location ?
Peut-on rentabiliser un GK50 en location ?
Oui — et le GK50 est le modèle qui atteint le potentiel locatif le plus élevé de la gamme des studios de jardin. Deux chambres distinctes permettent de cibler le segment T3 en location longue durée — la catégorie la plus recherchée sur les marchés résidentiels tendus. En location saisonnière, un logement de 50m² avec deux chambres se positionne sur le segment des maisons de vacances, avec des tarifs à la nuitée structurellement supérieurs aux appartements d’une chambre. Le retour sur investissement se situe généralement entre 7 et 12 ans selon la localisation et le mode de location retenu.
Peut-on financer le GK50 avec un crédit ?
Peut-on financer le GK50 avec un crédit ?
Oui. Le GK50 peut être financé par un crédit à la consommation, un prêt travaux ou intégré dans un prêt immobilier. Sa surface de 50m² et son permis de construire en font un bien immobilier pleinement reconnu par les établissements bancaires, facilitant les montages hypothécaires. Notre équipe peut vous orienter vers nos partenaires financement lors de l’étude de votre projet.
Le GK50 nécessite-t-il un permis de construire ?
Le GK50 nécessite-t-il un permis de construire ?
Oui. Le GK50 affiche une surface de plancher de 50m², bien au-delà du seuil de 20m² à partir duquel un permis de construire est obligatoire (article R421-1 du Code de l’urbanisme). La gestion intégrale du dossier — constitution, dépôt en mairie, suivi de l’instruction — est prise en charge par nos équipes dans le cadre de l’offre clé en main. Le délai d’instruction est généralement de 2 à 3 mois selon la commune.
Combien de temps faut-il pour obtenir le permis de construire du GK50 ?
Combien de temps faut-il pour obtenir le permis de construire du GK50 ?
Peut-on habiter à l'année dans un GK50 ?
Peut-on habiter à l'année dans un GK50 ?
Oui. Le GK50 est isolé RE2020, classé A, chauffé et ventilé — conçu pour être habitable 12 mois sur 12. À 50m², il constitue une maison compacte avec deux chambres, séjour, cuisine et salle de bain — un logement complet comparable à un T3 de plein droit. L’usage en habitation permanente reste soumis au zonage PLU de votre commune. Nos équipes vérifient ce point avant toute signature.
Le GK50 peut-il servir de résidence principale ?
Le GK50 peut-il servir de résidence principale ?
Oui, sous conditions. Le GK50 est techniquement habitable à l’année et dispose de tous les équipements d’un logement de plein droit. Son statut en résidence principale dépend du zonage PLU de votre commune et du statut juridique de la construction sur votre terrain. Nos équipes vérifient ce point lors de l’étude de votre projet.
🏡 Maison compacte de jardin 50m² : guide complet pour tout savoir
Le GK50 marque la limite supérieure de la gamme des studios de jardin Greenkub. À 50m², le terme “studio de jardin” ne reflète plus la réalité du programme — c’est une maison compacte indépendante, avec deux chambres, un séjour généreux, une cuisine entièrement équipée et une salle de bain complète. Un T3 de plein droit, installé dans votre jardin en 5 à 15 jours.
Ce n’est pas un glissement sémantique. C’est une réalité architecturale et fonctionnelle : le GK50 ne se distingue d’une maison traditionnelle que par son mode constructif — préfabrication en atelier, ossature bois massif CLT, installation sans chantier lourd — et par son délai de réalisation, incomparable avec celui d’une construction maçonnée de même surface.
Ce guide présente les caractéristiques techniques du GK50, ce que ces 50m² permettent concrètement, le cadre réglementaire applicable et les éléments de prix qui composent une offre clé en main.
Qu’est-ce que le GK50 ?
Le GK50 est une maison compacte de jardin plain-pied de 50m², préfabriquée en atelier et installée sur votre terrain en 5 à 15 jours. À 50m² de surface de plancher, un permis de construire est obligatoire — formalité intégralement gérée par nos équipes dans le cadre de l’offre clé en main.
La structure repose sur le procédé constructif Écobrique Greenkub : ossature bois massif CLT (Cross Laminated Timber), isolation en laine de bois conforme à la réglementation RE2020, bardage douglas traité classe IV, toiture EPDM. Menuiseries à double vitrage renforcé au gaz argon. Classe énergétique A. Garantie 10 à 15 ans.
Le GK50 intègre en configuration standard deux chambres distinctes, un séjour, une cuisine équipée, une salle de bain complète (WC, douche, vasque, sèche-serviettes), une ventilation mécanique contrôlée et une installation électrique conforme à la norme NF C 15-100. C’est le premier modèle de la gamme qui permet d’accueillir deux personnes dans des chambres entièrement séparées, sans contraindre les espaces de vie communs.
Ce que 50m² changent concrètement
La progression de 40m² à 50m² produit un changement qualitatif que les mètres carrés seuls ne décrivent pas suffisamment.
Dans un GK40, le logement dispose d’une chambre fermée, d’un séjour, d’une cuisine et d’une salle d’eau — c’est un T2 complet, sans compromis. Dans un GK50, une seconde chambre s’ajoute sans contraindre les autres zones. C’est précisément ce point qui change la nature du logement : deux chambres distinctes permettent d’accueillir un couple avec un enfant, deux adultes cohabitant tout en préservant leur intimité, ou un occupant principal avec une chambre d’appoint réellement utilisable.
La cuisine, à 50m², peut être entièrement séparée du séjour par une cloison ou une porte, sans que cette séparation ne réduise l’un ou l’autre espace en-deçà d’un seuil de confort. Le séjour peut organiser simultanément un espace canapé, une table à manger pour quatre personnes et une circulation dégagée vers les chambres et l’extérieur — trois fonctions qui, dans un GK40, réclament encore quelques arbitrages.
La salle de bain peut évoluer vers un équipement plus complet si le projet le requiert — baignoire, double vasque, colonne de douche — sans empiéter sur le reste du programme.
C’est à partir de 50m² que le logement de jardin atteint les standards d’un appartement résidentiel ordinaire.
À quels usages se destine le GK50 ?
Logement indépendant permanent pour un couple ou une famille. C’est l’usage pour lequel le GK50 est le plus naturellement adapté. Deux chambres séparées, un séjour généreux, une cuisine équipée, une salle de bain complète — c’est un logement complet, habitable à l’année, sans concession sur aucun des usages quotidiens. Pour une famille avec un enfant, un couple souhaitant un logement autonome dans le jardin d’un proche, ou deux adultes partageant un espace indépendant, le GK50 offre la surface et l’organisation nécessaires.
Location meublée longue durée T3. Sur le marché locatif résidentiel, un T3 — deux chambres, séjour, cuisine, salle de bain — est la catégorie la plus demandée et la plus rare dans les zones tendues. Le GK50 permet à un propriétaire de créer ce type de bien sur son terrain existant, avec un loyer mensuel comparable à celui d’un T3 en ville, sans les aléas d’un investissement immobilier classique. Le retour sur investissement se situe généralement entre 7 et 12 ans selon la localisation.
Hébergement touristique deux chambres. En location saisonnière, un logement de 50m² avec deux chambres séparées se positionne sur le segment des maisons de vacances — pas des studios. Il peut accueillir une famille de quatre personnes ou deux couples, une clientèle structurellement prête à payer davantage pour l’espace et l’autonomie. Sur les plateformes comme Airbnb ou Booking, cette configuration obtient des tarifs à la nuitée significativement supérieurs aux logements d’une chambre de même surface.
Résidence secondaire autonome. Pour ceux qui cherchent un pied-à-terre indépendant confortable — à la campagne, au bord de mer, à la montagne — le GK50 constitue une résidence secondaire entièrement autonome, sans les contraintes d’une copropriété et sans les coûts d’entretien d’une maison traditionnelle. Deux chambres permettent de recevoir des proches sans sacrifier le confort de l’occupant principal.
Logement multigénérationnel ou senior avec chambre aidant. Le GK50 plain-pied, avec ses deux chambres, se prête naturellement à une configuration multigénérationnelle : une chambre pour le senior, une chambre pour un aidant ou un proche présent à temps partiel. Le pack PMR disponible en option permet d’adapter la salle de bain et les circulations aux besoins spécifiques d’une personne en perte d’autonomie.
Le cadre réglementaire à 50m²
Permis de construire obligatoire. À 50m² de surface de plancher, le permis de construire est obligatoire (article R421-1 du Code de l’urbanisme). Cette formalité est intégralement prise en charge par nos équipes dans le cadre de l’offre clé en main : constitution du dossier, dépôt en mairie, suivi de l’instruction. Vous n’avez aucune démarche à effectuer.
Délai d’instruction. Le délai légal est de 2 mois à compter du dépôt d’un dossier complet, porté à 3 mois en zone protégée (périmètre ABF, site classé ou inscrit). Ce délai est intégré dans le calendrier global du projet dès la phase de conception — il ne constitue pas un aléa mais une étape planifiée.
Résidence principale ou annexe. Le GK50 est techniquement habitable à l’année et dispose de tous les équipements d’un logement de plein droit. Son statut juridique — logement annexe ou résidence principale — dépend du zonage PLU de votre commune. Nos équipes vérifient ce point avant toute signature de contrat.
Taxe d’aménagement. Calculée sur la surface de plancher, le taux communal et le taux départemental, son montant est généralement compris entre 2 000 et 7 000 € selon la commune — à intégrer dans le budget global du projet.
Distances aux limites séparatives. La règle générale impose 3 mètres minimum des limites séparatives. À 50m², la construction est de taille significative — son implantation fait l’objet d’un examen approfondi dans le cadre du permis. Ce point est sécurisé lors de la visite technique préalable.
Fondations : trois systèmes adaptés à votre terrain
Avant chaque installation, nos équipes réalisent une visite technique pour analyser la nature du sol, la topographie et les contraintes d’accessibilité. Trois systèmes sont disponibles.
Pieux d’ancrage. Adaptés aux sols stables et compacts, avec une mise en œuvre rapide et une empreinte au sol minimale.
Vis de fondation. Indiquées sur les sols argileux ou humides, elles s’ancrent en profondeur sans terrassement. Leur pose est réversible.
Dalle béton isolée. Pour les projets nécessitant une base rigide et une isolation par le sol renforcée, sur terrains complexes ou pour les usages exigeant une planéité parfaite et une inertie thermique accrue.
La solution retenue est communiquée avant tout engagement contractuel et est intégralement incluse dans le prix clé en main.
Composition du prix clé en main
Le GK50 est proposé entre 118 560 € et 124 440 €, pour une offre intégrant l’ensemble des prestations suivantes :
- Conception sur mesure avec un designer d’espace Greenkub
- Gestion complète du permis de construire (constitution, dépôt, suivi)
- Visite technique, étude de sol et réalisation des fondations adaptées
- Préfabrication, transport et livraison de la structure
- Installation complète par les équipes Greenkub (5 à 15 jours)
- Deux chambres fermées avec portes et fenêtres indépendantes
- Cuisine équipée (réfrigérateur, hotte, plaques vitrocéramiques, évier inox, meubles)
- Salle de bain complète (WC, douche, vasque, sèche-serviettes)
- Installation électrique conforme à la norme NF C 15-100
- Système de chauffage (convecteur)
- Ventilation mécanique contrôlée
La fourchette de prix reflète les options de personnalisation retenues : type de menuiseries, orientation des ouvertures, toiture végétalisée ou double pente, terrasse, pergola, parquet chêne massif, salle de bain avec baignoire, double vasque, pack PMR. La pompe à chaleur est disponible en option. Les raccordements aux réseaux (eau, assainissement) restent à la charge du maître d’ouvrage.



























































