Studio de jardin en bois 30m² avec toit-terrasse et mezzanine
Greenkub > Studios de jardin > Studio de jardin GK30T
30m2, et on n'a même pas compté la terrasse.
Aucun frais caché : tout est inclus dans votre budget, de la conception aux démarches administratives, jusqu’à l’équipement, l’aménagement, la livraison et l’installation.
10 à 15 ans
Faites place
à plus d’espace
Caractéristiques
10 à 15 ans
Structure et Extérieurs
Double vitrage renforcé au gaz argon
3 points
LED, Profilé LED
Réseau complet et conforme
• Tableau électrique
• Disjoncteur différentiel
• Disjoncteurs magnétothermiques
• Prises de courant
Intérieurs
Convecteur inclus
Système de ventilation inclus
Pompe à chaleur en option
Équipement
• Réfrigérateur top encastré
• Hotte aspirante
• Plaques de cuisson vitrocéramiques
• Évier en acier inoxydable
• Meuble niche à micro-onde
• Jusqu’à 11 meubles au choix parmi une large sélection
• WC
• Douche avec receveur
• Meuble vasque
• Vasque en céramique
• Robinetterie
• Sèche-serviettes
Procédé constructif
à définir lors de l’étude de sol
Bois massif d’épicéa + Isolation
Ossature bois massif + Isolation
Membrane EPDM
Bardage bois douglas traité classe IV
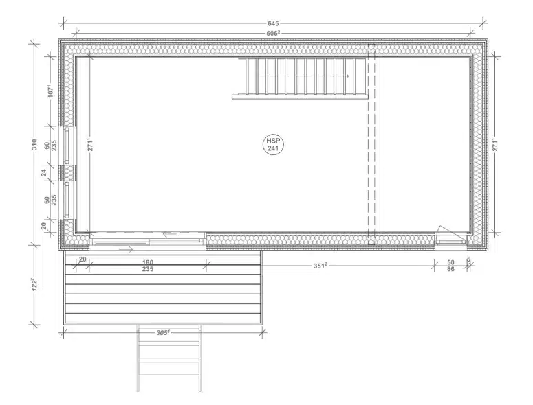
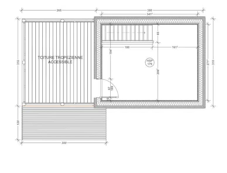
Le GK30T est un studio de jardin en bois avec étage et toiture-terrasse accessible — la Tropézienne. Sa dénomination commerciale affiche 30m² ; sa surface de plancher réglementaire reste inférieure à 20m². Une déclaration préalable de travaux suffit — aucun permis de construire n’est requis.
Ce résultat repose sur une conception architecturale précise. L’étage et la toiture-terrasse du GK30T sont dimensionnés de façon à rester hors du calcul réglementaire de la surface de plancher, conformément à l’article R111-22 du Code de la construction. Chaque projet est validé par nos équipes avant dépôt de la déclaration préalable.
Le programme s’organise sur deux niveaux distincts. Le rez-de-chaussée accueille la pièce de vie principale, la cuisine équipée et la salle d’eau complète — WC, douche, vasque, sèche-serviettes. L’étage reçoit la chambre ou l’espace de travail, et donne directement accès à la toiture-terrasse. La Tropézienne est une terrasse privatisée en hauteur, dégagée des vis-à-vis au sol, utilisable pour la détente, la réception ou le travail en plein air.
Comparé au GK30 plain-pied, le GK30T présente un avantages : il dispense de permis de construire, réduisant les délais de plusieurs mois. En contrepartie, la chambre de l’étage n’est pas fermée au sens strict du GK30 plain-pied — c’est un niveau distinct, séparé verticalement, mais ouvert sur la cage d’escalier. Pour un projet privilégiant la rapidité des démarches, un espace extérieur privatisé en hauteur et un budget maîtrisé, le GK30T s’impose. Pour un projet exigeant une chambre réellement fermée au sol, le GK30 plain-pied est le modèle approprié.
La structure repose sur le procédé constructif Écobrique Greenkub : ossature bois massif CLT, isolation en laine de bois conforme à la réglementation RE2020, bardage douglas traité classe IV, étanchéité EPDM renforcée en toiture-terrasse. Menuiseries à double vitrage renforcé au gaz argon. Classe énergétique A. Garantie 10 à 15 ans. Préfabriqué en atelier, installé sur votre terrain en 5 à 15 jours.
Ajustez selon vos envies
Terrasse et Tropézienne
Toiture double pente
Choix des menuiseries
Toiture végétalisée
Plans sur mesure
Pergola
Ouvertures supplémentaires
Revêtement de sol
Cuisine sur mesure
Accessibilité PMR
Ce studio de jardin
de 30m² est idéal pour
Réalisations
+4500 Greenkub partout en France
Construisez l'esprit libre !
Premier échange
autour de votre projet
Conception sur mesure
de votre habitat
Analyse du PLU
Prise en charges
des démarches
Visite technique
du terrain
Installation
entre 5 à 15 jours
Procédé constructif
Studio de jardin en bois :
une construction durable et performante
Une construction en ossature bois performante
Les constructions Greenkub sont réalisées avec une ossature en bois massif, alliant performance, durabilité et qualité de construction.
- Confort toute l’année grâce à une isolation en laine de bois
- Installation rapide grâce à la préfabrication en atelier
- Bois issu de forêts françaises gérées durablement
- Structure solide pensée pour durer dans le temps
Des fondations adaptées à votre terrain
Lors de la visite technique, nos équipes étudient le sol de votre terrain afin de choisir la solution la plus adaptée parmi nos différents systèmes de fondations. Cette visite est déterminante pour garantir la stabilité, l’horizontalité parfaite et la pérennité de votre Greenkub.
Nos modèles
Nous sommes vraiment ravis de Greenkub. C’était un peu mal engagé mais quel résultat. Le jeu en valait la chandelle 🤩🌟👌
Merci à vous
De votre compréhension et de votre super équipe de travail mise en place avec Nuno et son équipe , géniaux 🤩
Merci de votre attention
J’ai fait appel à Greenkub pour pouvoir loger ma maman juste à côté de chez moi.
La construction est parfaitement adaptée à ses besoins.
Tout c’est très bien passé, l’équipe qui s’en est chargé était très efficace et professionnelle.
Je suis entièrement satisfaite de toutes les équipes de Greenkub, du début à la fin.
Belle réalisation avec une équipe efficace, aimable et très professionnelle.
Un soin tout particulier est porté sur les finitions.
Excellent suivi du projet avec des interlocuteurs disponibles durant les différentes phases du projet, ce qui rassure beaucoup.
Je tenais à remercier toute l’équipe pour l’efficacité dont vous avez tous fait preuve depuis le début de l’aventure à vos côtés il y a qq mois et la remise des clés ce soir.
Nous allons à présent y mettre notre patte, mais une chose est sûre, nous allons vous recommander et allons essayer d’être des ambassadeurs à la hauteur de vos prestations. […]
Une très belle réalisation au fond de notre jardin que nous aurions dû réaliser bien plus tôt ! 🤩💥💯
1 an et demi que mon épouse m’en parlait…🤣🤦♂️
Le personnel autant dans les bureaux que sur site lors de la construction ont toujours été disponibles, agréables et très professionnels.🌈💖 Un grand bravo […]
FAQ
Quelle est la différence entre le GK30T et le GK30 plain-pied ?
Quelle est la différence entre le GK30T et le GK30 plain-pied ?
Le GK30 plain-pied organise ses 30m² sur un seul niveau avec une chambre réellement fermée — porte, fenêtre indépendante, isolation acoustique effective — et nécessite un permis de construire. Le GK30T distribue les usages sur deux niveaux — rez-de-chaussée et étage avec accès à la toiture-terrasse — avec une surface de plancher réglementaire inférieure à 20m², dispensée de permis. L’étage du GK30T offre une séparation verticale naturelle entre la chambre et la pièce de vie, mais pas une chambre fermée au sens strict. Pour un projet privilégiant la chambre fermée au sol, le GK30 plain-pied est le choix approprié. Pour un projet privilégiant la rapidité des démarches, un espace extérieur privatisé et un budget maîtrisé, le GK30T s’impose.
Qu'est-ce qu'une Tropézienne dans un studio de jardin ?
Qu'est-ce qu'une Tropézienne dans un studio de jardin ?
La Tropézienne désigne une toiture-terrasse accessible depuis l’intérieur du bâtiment. Sur le GK30T, elle est atteinte depuis l’étage par un accès direct, et constitue un espace extérieur privatisé en hauteur — dégagé des vis-à-vis au sol, exposé au soleil sans contrainte d’ombrage, utilisable pour la détente, le travail en plein air ou la réception. C’est une solution architecturale courante dans le bâtiment traditionnel du Sud de la France, transposée ici dans une construction bois préfabriquée.
À quoi sert concrètement un GK30T ?
À quoi sert concrètement un GK30T ?
Le GK30T se destine aux projets qui combinent plusieurs exigences simultanées : surface habitable conséquente, espace extérieur privatisé en hauteur, démarches administratives allégées et budget inférieur au GK30 plain-pied. Logement indépendant habitable à l’année avec terrasse, chambre d’hôtes haut de gamme avec accès toiture, location saisonnière premium, bureau de jardin avec espace de détente extérieur depuis l’étage — le GK30T répond à ces usages sans le délai ni le coût d’un permis de construire.
Quelle est la performance thermique du GK30T ?
Quelle est la performance thermique du GK30T ?
Le GK30T intègre le système constructif MOB Greenkub : ossature bois massif CLT associée à une isolation en laine de bois dans les parois, le sol et le plafond, conforme à la réglementation RE2020. L’étanchéité de la toiture-terrasse est assurée par une membrane EPDM renforcée, dimensionnée pour supporter les charges d’usage et les cycles gel-dégel. La classe énergétique A est obtenue sans système de compensation.
Comment les fondations du GK30T sont-elles choisies ?
Comment les fondations du GK30T sont-elles choisies ?
Avant chaque installation, nos équipes réalisent une visite technique pour analyser la nature du sol, la topographie et les contraintes d’accessibilité. Trois systèmes sont disponibles : pieux d’ancrage pour les sols stables et compacts, vis de fondation pour les sols argileux ou humides, dalle béton isolée pour les projets nécessitant une base rigide et une isolation par le sol renforcée. La solution retenue est communiquée avant tout engagement contractuel et est intégralement incluse dans le prix clé en main.
Quel est le prix du GK30T clé en main ?
Quel est le prix du GK30T clé en main ?
Le GK30T est proposé entre 78 600 € et 84 480 € TTC, pour une offre intégrant l’ensemble des prestations suivantes : conception sur mesure avec un designer d’espace Greenkub, gestion de la déclaration préalable, visite technique, fondations adaptées au terrain, préfabrication, livraison, installation complète par nos équipes (5 à 15 jours), cuisine équipée, salle d’eau complète, étage avec escalier intégré, toiture-terrasse avec étanchéité EPDM renforcée, installation électrique conforme à la norme NF C 15-100, chauffage et ventilation. La fourchette reflète les options de personnalisation retenues.
Peut-on rentabiliser un GK30T en location saisonnière ?
Peut-on rentabiliser un GK30T en location saisonnière ?
Oui. La toiture-terrasse constitue un argument locatif que les studios plain-pied ne peuvent pas offrir. Sur les plateformes de location courte durée, un bien de cette surface avec espace extérieur privatisé en hauteur et chambre à l’étage se positionne sur un segment premium. Le retour sur investissement se situe généralement entre 5 et 9 ans selon la localisation et le taux d’occupation.
Le prix inclut-il les fondations ?
Le prix inclut-il les fondations ?
Oui. Les fondations sont incluses dans le prix clé en main, dimensionnées sur la base des résultats de la visite technique préalable. Trois systèmes sont disponibles : pieux d’ancrage pour les sols stables et compacts, vis de fondation pour les sols argileux ou humides, dalle béton isolée pour les projets nécessitant une base rigide et une isolation par le sol renforcée. La solution retenue est communiquée avant tout engagement contractuel.
Peut-on financer le GK30T avec un crédit ?
Peut-on financer le GK30T avec un crédit ?
Oui. Le GK30T peut être financé par un crédit à la consommation, un prêt travaux ou intégré dans un prêt immobilier selon votre situation patrimoniale. Notre équipe peut vous orienter vers nos partenaires financement lors de l’étude de votre projet.
Le GK30T nécessite-t-il un permis de construire ?
Le GK30T nécessite-t-il un permis de construire ?
Non. Malgré ses deux niveaux d’usage et sa dénomination commerciale de 30m², la surface de plancher réglementaire du GK30T reste inférieure à 20m² — ce qui le dispense de permis de construire. Une déclaration préalable de travaux suffit, comme pour les modèles GK11, GK15 et GK20. Nos équipes prennent en charge cette démarche dans le cadre de l’offre clé en main.
Comment le GK30T échappe-t-il au permis de construire ?
Comment le GK30T échappe-t-il au permis de construire ?
Le GK30T est conçu de façon à ce que sa surface de plancher au sol reste inférieure à 20m² — le seuil réglementaire à partir duquel un permis de construire devient obligatoire. L’étage et la toiture-terrasse n’entrent pas dans ce calcul. Résultat : une déclaration préalable de travaux suffit, quelle que soit la surface totale développée.
Faut-il respecter des distances par rapport aux limites de propriété ?
Faut-il respecter des distances par rapport aux limites de propriété ?
Oui. La règle générale impose une implantation à 3 mètres minimum des limites séparatives, sauf disposition contraire du PLU ou accord écrit du propriétaire riverain. Point d’attention spécifique au GK30T : la toiture-terrasse crée un point de vue en hauteur pouvant générer des problématiques de vis-à-vis avec les propriétés voisines. Certains PLU encadrent ce type de configuration. Ce point est systématiquement vérifié lors de la visite technique préalable.
🏡 Guide : Studio de jardin 30m² en Tropézienne
Le GK30T est le modèle Tropézienne le plus spacieux de la gamme avant les 40m². Il cumule deux avantages que peu de constructions de jardin peuvent offrir simultanément : un rez-de-chaussée suffisamment grand pour ne réclamer aucun compromis fonctionnel, et une toiture-terrasse accessible depuis l’étage — sans permis de construire.
C’est précisément cette combinaison qui en fait un modèle à part. Le GK30 plain-pied offre la même surface au sol — mais avec un permis de construire, un délai de plusieurs mois et un prix supérieur. Le GK25T offre la même architecture verticale — mais avec 5m² de moins au rez-de-chaussée, ce qui se ressent directement dans le confort d’usage quotidien.
Ce guide présente l’architecture du GK30T, ce que ses deux niveaux permettent concrètement, le cadre réglementaire applicable et les éléments de prix qui composent une offre clé en main.
Qu’est-ce que le GK30T ?
Le GK30T est un studio de jardin en bois avec étage et toiture-terrasse accessible — la Tropézienne. Sa surface de plancher au sol reste inférieure à 20m² — le seuil à partir duquel un permis de construire devient obligatoire. L’étage et la toiture-terrasse n’entrent pas dans ce calcul. Une déclaration préalable de travaux suffit, quelle que soit la surface totale développée.
Le rez-de-chaussée accueille la pièce de vie, la cuisine équipée et la salle d’eau complète. L’étage reçoit la chambre ou l’espace de travail, et donne directement accès à la toiture-terrasse. La Tropézienne est une terrasse privatisée en hauteur, dégagée des vis-à-vis au sol, exposée au soleil sans contrainte d’ombrage.
La structure repose sur le procédé constructif Écobrique Greenkub : ossature bois massif CLT, isolation en laine de bois conforme à la réglementation RE2020, bardage douglas traité classe IV, étanchéité EPDM renforcée en toiture-terrasse. Menuiseries à double vitrage renforcé au gaz argon. Classe énergétique A. Garantie 10 à 15 ans. Prix clé en main : 78 600 € à 84 480 € TTC.
Les deux niveaux du GK30T
Le rez-de-chaussée. Avec un rez-de-chaussée plus généreux que celui du GK25T, le GK30T franchit un seuil qualitatif décisif. La pièce de vie dispose d’un espace suffisant pour recevoir, travailler et se détendre. La cuisine peut être ouverte sur le séjour ou légèrement séparée selon la configuration retenue — dans les deux cas, elle dispose d’un plan de travail correctement dimensionné et d’un rangement adapté. La salle d’eau complète — WC, douche, vasque, sèche-serviettes — s’intègre sans empiéter sur les autres zones. C’est le rez-de-chaussée d’un logement confortable, pas d’un logement optimisé.
L’étage. Accessible par un escalier compact intégré au plan, l’étage accueille la pièce principale — chambre, bureau ou espace de travail selon la configuration retenue avec votre designer d’espace. Il donne directement accès à la toiture-terrasse. La séparation verticale entre le rez-de-chaussée et l’étage produit une intimité naturelle que les studios plain-pied ne peuvent pas générer sans cloison.
La toiture-terrasse. Accessible depuis l’étage, la Tropézienne est une terrasse privatisée en hauteur, dégagée des vis-à-vis au sol. Espace de détente, de travail en plein air, de réception ou de petit-déjeuner en hauteur — c’est un usage extérieur à part entière, pas un simple toit praticable. Pour les projets locatifs, cet espace extérieur privatisé constitue un argument différenciant que les studios de jardin plain-pied ne peuvent structurellement pas offrir.
GK30T vs GK30 plain-pied : lequel choisir ?
C’est la comparaison centrale pour ce modèle. Voici les différences factuelles.
La réglementation. Le GK30 plain-pied dépasse le seuil des 20m² de surface de plancher au sol — un permis de construire est obligatoire, avec un délai d’instruction de 2 à 3 mois. Le GK30T reste sous ce seuil — une déclaration préalable suffit, avec un délai d’un mois. Pour un projet avec une contrainte de calendrier, cette différence représente plusieurs mois gagnés.
Le prix. Le GK30T est proposé entre 78 600 € et 84 480 € TTC — soit 6 000 à 7 000 € de moins que le GK30 plain-pied. La conception verticale réduit l’emprise des fondations et supprime les coûts liés au permis de construire.
L’organisation spatiale. Le GK30 plain-pied dispose d’une chambre réellement fermée — porte, fenêtre indépendante, isolation acoustique effective au sol. C’est un avantage pour les projets où la séparation physique de la chambre au rez-de-chaussée est prioritaire. Le GK30T propose une séparation verticale entre les niveaux — naturelle et efficace, mais différente d’une chambre fermée au sol.
L’espace extérieur. Le GK30 plain-pied n’a pas de toiture-terrasse. Le GK30T en dispose systématiquement — c’est sa définition même.
Le verdict. Pour un projet privilégiant la chambre fermée au sol, le GK30 plain-pied est le choix approprié. Pour un projet combinant rapidité des démarches, budget maîtrisé et espace extérieur privatisé en hauteur, le GK30T s’impose.
GK30T vs GK25T : ce que les 5m² supplémentaires changent
La différence entre le GK25T et le GK30T tient entièrement au rez-de-chaussée. Les deux modèles partagent la même architecture verticale — étage et toiture-terrasse accessibles, surface de plancher au sol inférieure à 20m², déclaration préalable suffisante. Ce qui change, c’est la surface disponible au niveau inférieur.
Dans un GK25T, le rez-de-chaussée accueille la pièce de vie, la cuisine et la salle d’eau dans un volume contraint. Chaque zone est fonctionnelle, mais les arbitrages sont réels — la cuisine réduite pour préserver la pièce de vie, ou l’inverse. Dans un GK30T, ces arbitrages disparaissent. La pièce de vie, la cuisine et la salle d’eau disposent chacune de l’espace qui leur revient, sans empiètement.
Pour un usage d’habitation permanente ou de location longue durée, cette différence conditionne directement le confort quotidien et la valeur locative du bien. Pour un usage saisonnier court, le GK25T peut suffire. Pour tout projet destiné à être habité durablement, le GK30T est le modèle approprié dans la gamme Tropézienne.
À quels usages se destine le GK30T ?
Logement indépendant habitable à l’année. Le rez-de-chaussée généreux et l’étage avec chambre séparée verticalement font du GK30T un logement complet, confortable toute l’année. Pour un enfant étudiant, un parent souhaitant conserver son autonomie ou un proche en transition, c’est le modèle Tropézienne le plus adapté à une habitation permanente. Les raccordements (eau, électricité, assainissement) sont à assurer par le maître d’ouvrage.
Location saisonnière premium. La combinaison d’un rez-de-chaussée confortable, d’une chambre à l’étage et d’une toiture-terrasse privatisée positionne le GK30T sur le segment le plus qualitatif de la location courte durée. Sur les plateformes comme Airbnb ou Booking, un bien de cette configuration obtient structurellement des tarifs à la nuitée supérieurs aux studios plain-pied et des avis clients favorables sur la séparation des espaces et l’espace extérieur. Le retour sur investissement se situe généralement entre 5 et 9 ans selon la localisation et le taux d’occupation.
Chambre d’hôtes avec terrasse privatisée. Dans les régions à fort ensoleillement, la toiture-terrasse constitue un argument de différenciation direct vis-à-vis des hébergements concurrents. La séparation verticale entre l’espace de vie et la chambre reproduit les standards d’un hébergement hôtelier dans un jardin privé.
Bureau avec espace de détente extérieur. Un rez-de-chaussée dédié au travail, une chambre de repos à l’étage pour les séjours prolongés, une terrasse pour les temps de pause en plein air — le GK30T structure l’usage professionnel sur deux niveaux avec un extérieur directement accessible depuis la pièce principale.
Pool house premium. Positionné à proximité d’une piscine, le GK30T combine un rez-de-chaussée fonctionnel — vestiaire, douche, espace de réception — avec une terrasse en hauteur offrant une vue dégagée sur le jardin et le bassin. Un niveau d’équipement que les pool houses traditionnels n’atteignent pas.
Cadre réglementaire applicable au GK30T
Déclaration préalable, pas permis de construire. La surface de plancher au sol du GK30T reste inférieure à 20m² — le seuil à partir duquel un permis de construire devient obligatoire. L’étage et la toiture-terrasse n’entrent pas dans ce calcul. Une déclaration préalable de travaux suffit. Nos équipes constituent et déposent ce dossier pour votre compte dans le cadre de l’offre clé en main. Le délai d’instruction est généralement d’un mois.
Distances aux limites séparatives. La règle générale impose une implantation à 3 mètres minimum des limites séparatives. Point d’attention spécifique : la toiture-terrasse crée un point de vue en hauteur pouvant générer des problématiques de vis-à-vis avec les propriétés voisines. Certains PLU encadrent ce type de configuration — ce point est vérifié lors de la visite technique préalable.
Zones protégées. En périmètre ABF, site classé ou inscrit, des prescriptions architecturales complémentaires peuvent s’appliquer — couleur de bardage, type de toiture, gabarit. La vérification du PLU et du zonage est effectuée par nos équipes avant toute signature.
Taxe d’aménagement. Calculée sur la surface de plancher au sol — inférieure à 20m² pour le GK30T — son montant est maintenu dans la même fourchette que les autres modèles sans permis. Généralement quelques centaines d’euros selon la commune.
Fondations : trois systèmes adaptés à votre terrain
Avant chaque installation, nos équipes réalisent une visite technique pour analyser la nature du sol, la topographie et les contraintes d’accessibilité. Trois systèmes sont disponibles.
Pieux d’ancrage. Adaptés aux sols stables et compacts, avec une mise en œuvre rapide et une empreinte au sol minimale.
Vis de fondation. Indiquées sur les sols argileux ou humides, elles s’ancrent en profondeur sans terrassement. Leur pose est réversible.
Dalle béton isolée. Pour les projets nécessitant une base rigide et une isolation par le sol renforcée, sur terrains complexes.
La solution retenue est communiquée avant tout engagement contractuel et est intégralement incluse dans le prix clé en main.
Composition du prix clé en main
Le GK30T est proposé entre 78 600 € et 84 480 € TTC, pour une offre intégrant l’ensemble des prestations suivantes :
- Conception sur mesure avec un designer d’espace Greenkub
- Gestion de la déclaration préalable de travaux
- Visite technique, étude de sol et réalisation des fondations adaptées
- Préfabrication, transport et livraison de la structure
- Installation complète par les équipes Greenkub (5 à 15 jours)
- Cuisine équipée (réfrigérateur, hotte, plaques vitrocéramiques, évier, meubles)
- Salle d’eau complète (WC, douche, vasque, sèche-serviettes)
- Étage avec escalier intégré
- Toiture-terrasse avec étanchéité EPDM renforcée
- Installation électrique conforme à la norme NF C 15-100
- Système de chauffage (convecteur)
- Ventilation mécanique contrôlée
La fourchette reflète les options de personnalisation retenues : type de menuiseries, bardage, parquet, garde-corps de terrasse, pergola en option, pack PMR. Les raccordements aux réseaux (eau, assainissement) restent à la charge du maître d’ouvrage.













































