Configurer mon projet

Studio de jardin en bois 40m²

GK40
GK40

40m2, et vos souhaits sont exaucés.

Le studio de jardin de 40m², en configuration cubique, offre un agencement astucieux et une fonctionnalité optimale. Avec une atmosphère intérieure accueillante, il propose un espace de vie plus grand, facilement aménageable en une ou deux chambres, ce qui en fait un excellent choix pour une résidence principale.

Étant de plain-pied, il peut également être adapté pour répondre aux normes PMR.

Prix clé en main
?
Nous faisons le choix de la transparence avec un prix tout compris.
Aucun frais caché : tout est inclus dans votre budget, de la conception aux démarches administratives, jusqu’à l’équipement, l’aménagement, la livraison et l’installation.
de 91 200€ à 97 080€
Configuration
?
Une configuration sur mesure : Chaque projet est personnalisé selon vos besoins : agencement, équipements et finitions sont définis avec vous.
40m2
Plain-pied
1
pièce à vivre
1
salle d'eau
1 à 2
chambres
Garanties
10 à 15 ans
Classe énergétique
Classe A
Isolation
RE2020

Faites place
à plus d’espace

Caractéristiques
Isolation
RE2020 – Laine de bois
Garanties

10 à 15 ans

Fenêtres

Double vitrage renforcé au gaz argon

Serrure

3 points 

Éclairage

LED, Profilé LED

Électricité

Réseau complet et conforme

• Tableau électrique

• Disjoncteur différentiel

• Disjoncteurs magnétothermiques

• Prises de courant

Chauffage
Ventilation
Clim
Cuisine équipée

• Réfrigérateur top encastré

• Hotte aspirante

• Plaques de cuisson vitrocéramiques

• Évier en acier inoxydable

• Meuble niche à micro-onde

• Jusqu’à 11 meubles au choix parmi une large sélection

Salle de bain complète

• WC

• Douche avec receveur

• Meuble vasque

• Vasque en céramique

• Robinetterie

• Sèche-serviettes

Fondations

à définir lors de l’étude de sol

Murs et cloisons

Bois massif d’épicéa + Isolation

Plafonds

Ossature bois massif + Isolation

Étanchéité

Membrane EPDM

Façade

Bardage bois douglas traité classe IV

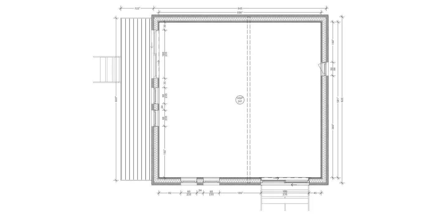
Plan standard, adaptable selon vos besoins avec l’aide de l’un de nos designers d’espace.

Le GK40 est un studio de jardin en bois de 40m². À ce niveau de surface, la dénomination “studio de jardin” devient presque réductrice : le GK40 est un logement indépendant complet, comparable dans son organisation à un T2 de plein droit, installé dans votre jardin en 5 à 15 jours.

Quarante mètres carrés permettent ce qu’aucun modèle inférieur ne peut produire sans arbitrage : une vraie chambre fermée avec penderie, une pièce de vie suffisamment grande pour recevoir, une cuisine entièrement équipée avec espace repas intégré, une salle d’eau complète — et dans certaines configurations, une salle de bain avec baignoire en lieu et place de la douche. Chaque zone dispose de la surface qui lui revient. Aucune n’est sacrifiée au profit d’une autre.

À 40m² de surface de plancher, un permis de construire est obligatoire. Cette formalité est intégralement gérée par nos équipes dans le cadre de l’offre clé en main — constitution du dossier, dépôt en mairie, suivi de l’instruction — sans démarche de votre part. Le délai d’instruction est généralement de 2 à 3 mois selon la commune.

La structure repose sur le procédé constructif Écobrique Greenkub : ossature bois massif CLT, isolation en laine de bois conforme à la réglementation RE2020, bardage douglas traité classe IV, toiture EPDM. Menuiseries à double vitrage renforcé au gaz argon. Classe énergétique A. Garantie 10 à 15 ans. Préfabriqué en atelier, installé sur votre terrain en 5 à 15 jours.

Le GK40 se destine aux projets qui ne tolèrent aucun compromis : logement indépendant habitable à l’année pour un usage permanent, résidence secondaire autonome et confortable, location meublée longue durée sur le segment T2, hébergement touristique haut de gamme avec chambre réellement séparée et espace de vie généreux. Chaque GK40 est conçu sur mesure avec un designer d’espace Greenkub.

Ajustez selon vos envies

Visitez le GK40 en 3D

Cuisine équipée

Électroménagers inclus

Salle d’eau complète

Réalisations

+4500 Greenkub partout en France

Construisez l'esprit libre !

1

Premier échange
autour de votre projet

2

Conception sur mesure
de votre habitat

3

Analyse du PLU

Prise en charges
des démarches

4

Visite technique
du terrain

5

Installation
entre 5 à 15 jours

Procédé constructif

Studio de jardin en bois :
une construction durable et performante

Une construction en ossature bois performante

Les constructions Greenkub sont réalisées avec une ossature en bois massif, alliant performance, durabilité et qualité de construction.

  • Confort toute l’année grâce à une isolation en laine de bois
  • Installation rapide grâce à la préfabrication en atelier
  • Bois issu de forêts françaises gérées durablement
  • Structure solide pensée pour durer dans le temps
 

Des fondations adaptées à votre terrain

Lors de la visite technique, nos équipes étudient le sol de votre terrain afin de choisir la solution la plus adaptée parmi nos différents systèmes de fondations. Cette visite est déterminante pour garantir la stabilité, l’horizontalité parfaite et la pérennité de votre Greenkub.

Équipes
Services
Qualité produit
SATISFACTION
4,5
Moyenne annuelle
rapidité démarches facilitées conseils efficaces matériaux de qualité à l’écoute service client réactif

FAQ

À quoi sert concrètement un logement de 40m² dans un jardin ?

À 40m², les usages les plus pertinents sont ceux qui tirent parti de la surface complète. Logement indépendant habitable à l’année — pour un parent senior souhaitant rester proche sans cohabiter, avec la possibilité d’intégrer un pack PMR. Location saisonnière ou meublée longue durée sur le segment T2 — le standard locatif le plus demandé. Chambre d’hôtes avec salon privé distinct de la chambre — le critère n°1 des classements haut de gamme. Tiny house ou résidence secondaire autonome, sans contrainte de surface ni de confort.

Oui — c’est l’un de ses usages les plus adaptés. À 40m², les adaptations PMR (Personnes à Mobilité Réduite) s’intègrent sans compromettre le confort d’usage général : salle d’eau aux normes avec douche à l’italienne et espace de rotation, largeurs de passage conformes, rampe d’accès. Le pack PMR est disponible en option et doit être précisé dès la phase de conception avec votre designer d’espace Greenkub. La configuration plain-pied du GK40 est intrinsèquement favorable à cet usage.

Le GK40 intègre le système constructif Écobrique Greenkub : ossature bois massif CLT associée à une isolation en laine de bois dans les parois, le sol et le plafond, conforme à la réglementation RE2020. La ventilation mécanique contrôlée garantit un renouvellement d’air optimal sans déperdition thermique. La classe énergétique A est obtenue sans système de compensation — elle résulte directement de la qualité constructive. À 40m², cette performance se traduit par des charges de chauffage très contenues, comparativement à un logement traditionnel de surface équivalente.

Un GK40 dure aussi longtemps qu’une construction traditionnelle. L’ossature bois massif CLT, le bardage douglas traité classe IV et la toiture EPDM forment un ensemble qui tient dans le temps sans entretien structurel. Une application de lasure tous les 5 à 8 ans préserve l’aspect esthétique du bardage — la structure ne demande aucune intervention particulière. Garantie décennale sur la structure, garantie contractuelle de 10 à 15 ans selon la configuration retenue.

Lors de la visite technique préalable, nos équipes analysent la nature du sol, la topographie et les contraintes d’accessibilité. Trois systèmes sont disponibles : pieux d’ancrage pour les sols stables et compacts, vis de fondation pour les sols argileux ou humides, dalle béton isolée pour les projets nécessitant une base rigide et une isolation par le sol renforcée. La solution retenue est communiquée avant tout engagement contractuel et est intégralement incluse dans le prix clé en main.

Quel est le prix d'un studio de jardin 40m² clé en main ?

Le GK40 est proposé entre 91 200 € et 97 080 € TTC, pour une offre intégrant l’ensemble des prestations suivantes : conception sur mesure avec un designer d’espace Greenkub, gestion complète du permis de construire, visite technique, fondations adaptées au terrain, préfabrication, livraison, installation complète par nos équipes (5 à 15 jours), cuisine équipée, salle d’eau complète, installation électrique conforme à la norme NF C 15-100, système de chauffage et ventilation mécanique contrôlée. La fourchette reflète les options de personnalisation retenues.

Oui, les deux sont inclus dans le prix clé en main. Les fondations sont dimensionnées sur la base des résultats de la visite technique préalable : pieux d’ancrage pour les sols stables et compacts, vis de fondation pour les sols argileux ou humides, dalle béton isolée pour les projets nécessitant une base rigide et une isolation par le sol renforcée. Le permis de construire est géré intégralement par nos équipes, sans frais supplémentaires.

Oui. Les fondations sont incluses dans le prix clé en main, sur la base des résultats de la visite technique préalable. Trois systèmes sont disponibles selon la nature du sol et la topographie du terrain : pieux d’ancrage pour les sols stables et compacts, vis de fondation pour les sols argileux ou humides, dalle béton isolée pour les projets nécessitant une base rigide et une isolation par le sol renforcée. La solution retenue est communiquée avant tout engagement contractuel.

Le GK40 nécessite-t-il un permis de construire ?

Oui. Le GK40 affiche une surface de plancher de 40m², bien au-delà du seuil de 20m² à partir duquel un permis de construire est obligatoire (article R421-1 du Code de l’urbanisme). La gestion intégrale du dossier — constitution, dépôt en mairie, suivi de l’instruction — est prise en charge par nos équipes dans le cadre de l’offre clé en main. Le délai d’instruction est généralement de 2 à 3 mois selon la commune.

Oui, sous conditions. Le GK40 est techniquement habitable à l’année et dispose de tous les équipements d’un logement de plein droit. Son usage en résidence principale dépend toutefois du zonage PLU de votre commune et du statut de la construction sur votre terrain. Dans certaines zones, les constructions annexes ne peuvent pas être déclarées en résidence principale. Ce point est vérifié par nos équipes lors de l’étude de votre projet.

Le délai légal d’instruction est de 2 mois à compter du dépôt d’un dossier complet, porté à 3 mois dans les communes situées en zone protégée (périmètre ABF, site classé ou inscrit). Nos équipes constituent et déposent le dossier pour votre compte — vous n’avez aucune démarche à effectuer. Ce délai est intégré dans le calendrier global du projet dès la phase de conception.

🏡 Logement de jardin 40m² : guide complet pour tout savoir

À 40m², on ne parle plus vraiment d’un studio de jardin. On parle d’un logement indépendant — comparable dans son organisation à un T2 de plein droit, installé dans votre jardin en 5 à 15 jours, sans les contraintes d’un chantier traditionnel.

Le GK40 est le modèle à partir duquel la gamme Greenkub bascule vers une autre catégorie d’usage. Les modèles inférieurs répondent à des besoins précis — bureau, chambre d’hôtes, logement étudiant, location compacte. Le GK40 répond à des projets de vie : habiter en toute autonomie dans son jardin, accueillir un parent durablement, créer un bien locatif qui rivalise avec l’offre immobilière résidentielle classique.

Ce guide présente les caractéristiques techniques du GK40, ce que ces 40m² permettent concrètement, le cadre réglementaire applicable et les éléments de prix qui composent une offre clé en main.

Testing