25m2, pour tous vos projets.
Le GK25 est idéal pour les projets habitables de plain-pied, offrant une chambre séparée de la pièce à vivre. Il convient notamment comme résidence principale ou secondaire et est particulièrement sécurisé pour les personnes âgées. Flexible dans son agencement, en longueur ou en L, il permet une terrasse plus grande et offre diverses options pour les fenêtres et les cloisons.
Aucun frais caché : tout est inclus dans votre budget, de la conception aux démarches administratives, jusqu’à l’équipement, l’aménagement, la livraison et l’installation.
10 à 15 ans
Faites place
à plus d’espace
Caractéristiques
10 à 15 ans
Structure et Extérieurs
Double vitrage renforcé au gaz argon
3 points
LED, Profilé LED
Réseau complet et conforme
• Tableau électrique
• Disjoncteur différentiel
• Disjoncteurs magnétothermiques
• Prises de courant
Intérieurs
Convecteur inclus
Système de ventilation inclus
Pompe à chaleur en option
Équipement
• Réfrigérateur top encastré
• Hotte aspirante
• Plaques de cuisson vitrocéramiques
• Évier en acier inoxydable
• Meuble niche à micro-onde
• Jusqu’à 11 meubles au choix parmi une large sélection
• WC
• Douche avec receveur
• Meuble vasque
• Vasque en céramique
• Robinetterie
• Sèche-serviettes
Procédé constructif
à définir lors de l’étude de sol
Bois massif d’épicéa + Isolation
Ossature bois massif + Isolation
Membrane EPDM
Bardage bois douglas traité classe IV
Le GK25 est un studio de jardin en bois de 25m², premier modèle de la gamme Greenkub à franchir le seuil des 20m² de surface de plancher. Ce seuil a une conséquence réglementaire directe : un permis de construire est requis, en lieu et place de la simple déclaration préalable suffisante pour les modèles inférieurs. Nos équipes prennent en charge l’intégralité de cette démarche — constitution du dossier, dépôt en mairie, suivi de l’instruction — dans le cadre de l’offre clé en main.
Ce changement de seuil ouvre en contrepartie des possibilités d’aménagement qu’aucun modèle de 20m² ne peut offrir. Avec 25m², le GK25 permet de concevoir un plan véritablement organisé : une pièce de vie généreuse, une chambre séparée, une salle d’eau complète et une cuisine équipée — sans que ces quatre fonctions n’empiètent les unes sur les autres. C’est le premier modèle de la gamme qui s’approche des standards d’un logement T1 bis de plein droit.
La structure repose sur le procédé constructif Écobrique Greenkub : ossature bois massif CLT, isolation en laine de bois conforme à la réglementation RE2020, bardage douglas traité classe IV, toiture EPDM. Menuiseries à double vitrage renforcé au gaz argon. Classe énergétique A. Garantie 10 à 15 ans. Préfabriqué en atelier et installé sur votre terrain en 5 à 15 jours.
Le GK25 se destine aux projets qui ont dépassé le stade du compromis : logement indépendant habitable à l’année pour un enfant, un parent ou un proche, chambre d’hôtes avec espace de réception distinct, location saisonnière à fort potentiel locatif, cabinet de praticien avec salle d’attente intégrée. Chaque GK25 est conçu sur mesure avec l’aide d’un designer d’espace Greenkub : orientation des ouvertures, toiture végétalisée ou double pente, terrasse, pergola.
Ajustez selon vos envies
Terrasse et Tropézienne
Toiture double pente
Choix des menuiseries
Toiture végétalisée
Plans sur mesure
Pergola
Ouvertures supplémentaires
Revêtement de sol
Cuisine sur mesure
Accessibilité PMR
Ce studio de jardin
de 25m² est idéal pour
Réalisations
+4500 Greenkub partout en France
Construisez l'esprit libre !
Premier échange
autour de votre projet
Conception sur mesure
de votre habitat
Analyse du PLU
Prise en charges
des démarches
Visite technique
du terrain
Installation
entre 5 à 15 jours
Procédé constructif
Studio de jardin en bois :
une construction durable et performante
Une construction en ossature bois performante
Les constructions Greenkub sont réalisées avec une ossature en bois massif, alliant performance, durabilité et qualité de construction.
- Confort toute l’année grâce à une isolation en laine de bois
- Installation rapide grâce à la préfabrication en atelier
- Bois issu de forêts françaises gérées durablement
- Structure solide pensée pour durer dans le temps
Des fondations adaptées à votre terrain
Lors de la visite technique, nos équipes étudient le sol de votre terrain afin de choisir la solution la plus adaptée parmi nos différents systèmes de fondations. Cette visite est déterminante pour garantir la stabilité, l’horizontalité parfaite et la pérennité de votre Greenkub.
Nos modèles
Nous sommes vraiment ravis de Greenkub. C’était un peu mal engagé mais quel résultat. Le jeu en valait la chandelle 🤩🌟👌
Merci à vous
De votre compréhension et de votre super équipe de travail mise en place avec Nuno et son équipe , géniaux 🤩
Merci de votre attention
J’ai fait appel à Greenkub pour pouvoir loger ma maman juste à côté de chez moi.
La construction est parfaitement adaptée à ses besoins.
Tout c’est très bien passé, l’équipe qui s’en est chargé était très efficace et professionnelle.
Je suis entièrement satisfaite de toutes les équipes de Greenkub, du début à la fin.
Belle réalisation avec une équipe efficace, aimable et très professionnelle.
Un soin tout particulier est porté sur les finitions.
Excellent suivi du projet avec des interlocuteurs disponibles durant les différentes phases du projet, ce qui rassure beaucoup.
Je tenais à remercier toute l’équipe pour l’efficacité dont vous avez tous fait preuve depuis le début de l’aventure à vos côtés il y a qq mois et la remise des clés ce soir.
Nous allons à présent y mettre notre patte, mais une chose est sûre, nous allons vous recommander et allons essayer d’être des ambassadeurs à la hauteur de vos prestations. […]
Une très belle réalisation au fond de notre jardin que nous aurions dû réaliser bien plus tôt ! 🤩💥💯
1 an et demi que mon épouse m’en parlait…🤣🤦♂️
Le personnel autant dans les bureaux que sur site lors de la construction ont toujours été disponibles, agréables et très professionnels.🌈💖 Un grand bravo […]
FAQ
Peut-on habiter à l'année dans un GK25 ?
Peut-on habiter à l'année dans un GK25 ?
Oui. Le GK25 est isolé RE2020, classé A, chauffé et ventilé — il est conçu pour être habitable 12 mois sur 12. Avec 25m², il constitue le premier modèle de la gamme permettant d’organiser un logement complet avec pièce de vie, chambre, salle d’eau et cuisine sans compromis fonctionnel. L’usage en habitation permanente reste néanmoins soumis au zonage PLU de votre commune : certaines zones n’autorisent pas l’habitation permanente dans les constructions annexes. Nos équipes vérifient ce point avant toute signature.
À quoi sert concrètement un studio de jardin de 25m² ?
À quoi sert concrètement un studio de jardin de 25m² ?
Le GK25 est le premier modèle de la gamme qui permet d’organiser un logement complet sans compromise fonctionnel : pièce de vie généreuse, chambre séparée, salle d’eau complète avec douche, WC et vasque, et cuisine équipée. Avec 25m², il se destine aux projets qui ont dépassé le stade du compromis : logement indépendant habitable à l’année pour un enfant, un parent ou un proche ; chambre d’hôtes avec espace de réception distinct de l’espace de nuit ; location saisonnière ou meublée à fort potentiel ; cabinet de praticien avec salle d’attente intégrée.
Quelle est la différence entre le GK25 et le GK20 ?
Quelle est la différence entre le GK25 et le GK20 ?
Cinq mètres carrés supplémentaires et un changement de seuil réglementaire. Concrètement, ces 5m² font la différence entre un studio où toutes les fonctions cohabitent dans un même espace, et un logement où chaque zone dispose de sa propre définition spatiale. Le GK25 permet de créer une vraie chambre fermée sans réduire la pièce de vie. Pour un projet de location meublée ou d’habitation permanente, cette différence est déterminante.
Quelle est la performance thermique du GK25 ?
Quelle est la performance thermique du GK25 ?
Le GK25 intègre le système constructif Écobrique Greenkub : ossature bois massif CLT associée à une isolation en laine de bois dans les parois, le sol et le plafond, conforme à la réglementation RE2020. La ventilation mécanique contrôlée garantit un renouvellement d’air optimal sans déperdition thermique. La classe énergétique A est obtenue sur l’ensemble de la gamme sans système de compensation — elle résulte directement de la qualité constructive.
Quelle est la durée de vie d'un GK25 ?
Quelle est la durée de vie d'un GK25 ?
Un GK25 dure aussi longtemps qu’une construction traditionnelle. L’ossature bois massif CLT, le bardage douglas traité classe IV et la toiture EPDM forment un ensemble qui tient dans le temps sans entretien structurel. Une application de lasure tous les 5 à 8 ans préserve l’aspect esthétique du bardage — la structure ne demande aucune intervention particulière. Garantie décennale sur la structure, garantie contractuelle de 10 à 15 ans selon la configuration retenue.
Quel est le prix d'un studio de jardin 25m² clé en main ?
Quel est le prix d'un studio de jardin 25m² clé en main ?
Le GK25 est proposé entre 75 480 € et 81 360 €, pour une offre intégrant l’ensemble des prestations suivantes : conception sur mesure avec un designer d’espace Greenkub, gestion complète du permis de construire, visite technique, fondations adaptées au terrain, préfabrication, livraison, installation complète par nos équipes (5 à 15 jours), cuisine équipée, salle d’eau complète, installation électrique conforme à la norme NF C 15-100, système de chauffage et ventilation mécanique contrôlée. La fourchette reflète les options de personnalisation retenues — type de menuiseries, toiture végétalisée, terrasse, pergola, parquet massif.
Le prix inclut-il les fondations et le permis de construire ?
Le prix inclut-il les fondations et le permis de construire ?
Oui, les deux sont inclus dans le prix clé en main. Les fondations sont dimensionnées sur la base des résultats de la visite technique préalable : pieux d’ancrage, vis de fondation ou dalle béton isolée selon la nature du sol et la topographie du terrain. Le dossier de permis de construire est constitué, déposé et suivi par nos équipes — sans frais supplémentaires. En cas de contraintes géotechniques particulières, les adaptations nécessaires sont identifiées et communiquées avant tout engagement contractuel.
Peut-on rentabiliser un GK25 en location ?
Peut-on rentabiliser un GK25 en location ?
Oui, et la surface de 25m² constitue un avantage décisif sur le marché locatif. Un GK25 bien configuré — avec chambre séparée, salle d’eau complète et cuisine équipée — se positionne sur un segment locatif plus qualitatif qu’un studio de 20m². En location saisonnière, les biens disposant d’une vraie chambre fermée obtiennent systématiquement des tarifs à la nuitée supérieurs. En location longue durée, 25m² permettent de viser un loyer mensuel significativement plus élevé qu’un studio standard. Le retour sur investissement se situe généralement entre 5 et 9 ans selon la localisation et le mode de location retenu.
Peut-on financer le GK25 avec un crédit ?
Peut-on financer le GK25 avec un crédit ?
Oui. Le GK25 peut être financé par un crédit à la consommation, un prêt travaux ou, selon votre situation patrimoniale, intégré dans un prêt immobilier. Sa surface de 25m² et son permis de construire en font un bien immobilier reconnu par la plupart des établissements bancaires, ce qui facilite l’accès au financement comparativement aux modèles soumis à simple déclaration préalable. Notre équipe peut vous orienter vers nos partenaires financement lors de l’étude de votre projet.
Le GK25 nécessite-t-il un permis de construire ?
Le GK25 nécessite-t-il un permis de construire ?
Oui. Le GK25 affiche une surface de plancher de 25m², au-delà du seuil de 20m² à partir duquel un permis de construire est obligatoire (article R421-1 du Code de l’urbanisme). C’est la principale différence réglementaire avec les modèles GK11, GK15, GK20 et RAK20. La bonne nouvelle : la gestion intégrale du dossier de permis de construire — constitution, dépôt en mairie, suivi de l’instruction — est prise en charge par nos équipes dans le cadre de l’offre clé en main. Le délai d’instruction est généralement de 2 à 3 mois selon la commune.
Quelles distances par rapport aux limites de propriété s'appliquent au GK25 ?
Quelles distances par rapport aux limites de propriété s'appliquent au GK25 ?
La règle générale impose une implantation à 3 mètres minimum des limites séparatives, sauf disposition contraire du PLU ou accord écrit du propriétaire riverain. Dès lors qu’un permis de construire est requis, le dossier est soumis à un examen plus approfondi par les services d’urbanisme — ce qui rend la conformité aux règles d’implantation d’autant plus critique. Ce point est vérifié et sécurisé par nos équipes lors de la visite technique préalable, avant toute signature de contrat.
Le GK25 génère-t-il une taxe foncière supplémentaire ?
Le GK25 génère-t-il une taxe foncière supplémentaire ?
Oui. Toute construction soumise à permis de construire intègre la valeur locative cadastrale servant de base au calcul de la taxe foncière annuelle, et est assujettie à la taxe d’aménagement lors de la délivrance du permis. Pour une surface de 25m², le montant de la taxe d’aménagement est généralement compris entre 500 et 2 500 € selon la commune, le taux communal et le taux départemental applicables — une charge ponctuelle, à mettre en regard de la valorisation patrimoniale immédiate générée par l’ouvrage.
Combien de temps faut-il pour obtenir le permis de construire du GK25 ?
Combien de temps faut-il pour obtenir le permis de construire du GK25 ?
Le délai légal d’instruction d’un permis de construire pour une construction nouvelle est de 2 mois à compter du dépôt d’un dossier complet. Ce délai peut être porté à 3 mois dans les communes situées en zone protégée (périmètre ABF, site classé ou inscrit) ou dans certaines zones à réglementation particulière. Nos équipes constituent et déposent le dossier pour votre compte — vous n’avez aucune démarche à effectuer.
🏡 Studio de jardin de 25m² : guide complet pour tout savoir
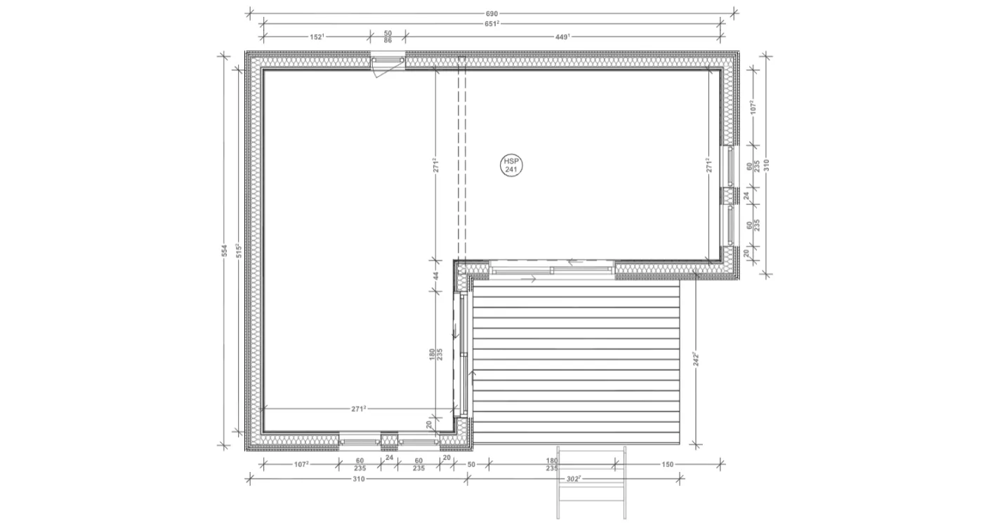
Le studio de jardin de 25m² marque une étape structurante dans la gamme Greenkub. Ce n’est pas seulement 5m² supplémentaires par rapport au GK20 — c’est un changement de registre. La surface franchit le seuil réglementaire des 20m² qui déclenche l’obligation de permis de construire, et elle ouvre simultanément des possibilités d’aménagement qu’aucun modèle inférieur ne peut atteindre sans compromis fonctionnel.
Ce guide présente les caractéristiques techniques du GK25, ce que ces 25m² permettent concrètement, le cadre réglementaire spécifique à ce modèle, et les éléments de prix qui composent une offre clé en main.
Qu’est-ce que le GK25 ?
Le GK25 est un studio de jardin plain-pied de 25m², préfabriqué en atelier et installé sur votre terrain en 5 à 15 jours. Il est le premier modèle de la gamme Greenkub à dépasser le seuil des 20m² de surface de plancher — seuil à partir duquel un permis de construire est obligatoire, en lieu et place de la déclaration préalable suffisante pour les modèles inférieurs.
Ce seuil franchi, le GK25 offre ce qu’aucun studio de 20m² ne peut produire sans compromis : un plan véritablement organisé en zones distinctes. Pièce de vie généreuse, chambre séparée, salle d’eau complète, cuisine équipée — les quatre fonctions coexistent sans empiètement l’une sur l’autre. C’est le premier modèle de la gamme qui s’approche des standards d’un logement T1 bis de plein droit.
La structure repose sur le procédé constructif Écobrique Greenkub : ossature bois massif CLT (Cross Laminated Timber), isolation en laine de bois conforme à la réglementation RE2020, bardage douglas traité classe IV, toiture EPDM. Menuiseries à double vitrage renforcé au gaz argon. Classe énergétique A. Garantie 10 à 15 ans.
Ce que 25m² changent concrètement
La différence entre 20m² et 25m² ne se mesure pas qu’en surface au sol. Elle se mesure en qualité d’usage.
Dans un studio de 20m², la chambre est souvent un espace dédié mais ouvert sur la pièce de vie — un lit en alcôve, une zone délimitée par un meuble ou un rideau. Dans un GK25, il est possible de créer une chambre réellement fermée, avec une porte, une fenêtre indépendante, une isolation acoustique effective vis-à-vis du salon. Cette séparation physique transforme radicalement le confort de vie quotidien et la valeur locative du bien.
La salle d’eau gagne également en confort : avec 25m², elle peut accueillir une douche à l’italienne, un WC, une vasque et un sèche-serviettes sans que chaque élément ne soit à l’extrême limite de l’espace disponible. La cuisine peut disposer d’un vrai plan de travail, d’un espace de rangement suffisant, d’une table intégrée pour deux personnes.
Pour un projet de location meublée ou d’habitation permanente, ces cinq mètres carrés supplémentaires justifient un positionnement tarifaire nettement supérieur — et un taux d’occupation structurellement plus élevé.
À quels usages se destine le GK25 ?
Logement indépendant habitable à l’année. C’est l’usage pour lequel le GK25 est le plus souvent choisi. Un enfant étudiant, un parent vieillissant souhaitant garder son autonomie tout en restant à proximité, un proche en situation de transition : le GK25 offre un logement complet, confortable toute l’année, sans les contraintes d’un bail en ville. Les raccordements (eau, électricité, assainissement) doivent être assurés par le maître d’ouvrage.
Location saisonnière ou meublée longue durée. La chambre fermée du GK25 le positionne sur un segment locatif supérieur à celui des studios ouverts de 20m². Sur les plateformes de location courte durée, un bien disposant d’une vraie chambre séparée obtient systématiquement des tarifs à la nuitée plus élevés et des avis plus favorables. En location longue durée, 25m² avec chambre séparée permettent de viser un loyer mensuel significativement supérieur. Le retour sur investissement se situe généralement entre 5 et 9 ans selon la localisation et le taux d’occupation.
Chambre d’hôtes avec espace de réception. Le GK25 permet de dissocier l’espace de réception des clients — salon, accueil, petit-déjeuner — de l’espace de nuit proprement dit. C’est précisément ce que les organismes de classement en chambre d’hôtes évaluent en priorité.
Cabinet de praticien avec salle d’attente. Avec 25m², il devient possible de concevoir un espace de consultation et une zone d’attente distincte dans un même volume — une configuration que le GK20 ne peut pas offrir sans sacrifier l’un des deux espaces.
Habitation senior ou logement PMR. Le pack PMR disponible en option — rampe d’accès, salle d’eau adaptée, largeurs de passage conformes — fait du GK25 un logement pleinement accessible. Sa surface permet d’intégrer ces adaptations sans compromettre le confort d’usage général.
Le changement réglementaire à 25m² : ce qu’il implique
C’est le point sur lequel nos équipes reçoivent le plus de questions avant la signature. Il mérite une réponse claire.
Permis de construire obligatoire. En deçà de 20m² de surface de plancher, une déclaration préalable de travaux suffit. Au-delà — ce qui est le cas du GK25 — un permis de construire est obligatoire (article R421-1 du Code de l’urbanisme). Cette formalité est intégralement prise en charge par nos équipes dans le cadre de l’offre clé en main : constitution du dossier, dépôt en mairie, suivi de l’instruction. Vous n’avez aucune démarche à effectuer.
Délai d’instruction. Le délai légal est de 2 mois à compter du dépôt d’un dossier complet. Il peut être porté à 3 mois dans les communes situées en zone protégée (périmètre ABF, site classé ou inscrit). Ce délai s’ajoute au temps de préfabrication et d’installation — il est à intégrer dans le calendrier global de votre projet dès la phase de conception.
Examen du dossier plus approfondi. Un permis de construire est soumis à un contrôle de conformité plus complet qu’une déclaration préalable : règles de prospect, intégration paysagère, conformité au PLU. Nos équipes maîtrisent ces exigences et constituent des dossiers complets dès le premier dépôt — ce qui réduit le risque de demande de pièces complémentaires.
Taxe d’aménagement. Le permis de construire déclenche la taxe d’aménagement, calculée sur la surface de plancher, le taux communal et le taux départemental. Pour un GK25, son montant est généralement compris entre 500 et 2 500 € selon la commune — une charge ponctuelle, intégrée dans la réflexion budgétaire globale.
Fondations : trois systèmes adaptés à votre terrain
Avant chaque installation, nos équipes réalisent une visite technique pour analyser la nature du sol, la topographie et les contraintes d’accessibilité du terrain. Trois systèmes de fondations sont disponibles selon les résultats de cette analyse.
Pieux d’ancrage. Adaptés aux sols stables et compacts, les pieux d’ancrage offrent une mise en œuvre rapide et une empreinte au sol minimale. Ils conviennent aux terrains plans ou en légère pente, sans contrainte géotechnique particulière.
Vis de fondation. Particulièrement indiquées sur les sols argileux, les terrains humides ou les zones sujettes au retrait-gonflement des argiles, les vis de fondation s’ancrent en profondeur sans terrassement. Leur pose est réversible — un avantage dans certaines configurations réglementaires ou patrimoniales.
Dalle béton isolée. Retenue pour les projets nécessitant une base rigide et une isolation par le sol renforcée, la dalle béton isolée convient aux terrains complexes ou aux usages exigeant une planéité parfaite et une inertie thermique accrue au niveau du sol.
La solution retenue est communiquée avant tout engagement contractuel. Les fondations sont intégralement incluses dans le prix clé en main.
Composition du prix clé en main
Le GK25 est proposé entre 75 480 € et 81 360 €, pour une offre intégrant l’ensemble des prestations suivantes :
- Conception sur mesure avec un designer d’espace Greenkub
- Gestion complète du permis de construire (constitution, dépôt, suivi)
- Visite technique, étude de sol et réalisation des fondations adaptées
- Préfabrication, transport et livraison de la structure
- Installation complète par les équipes Greenkub (5 à 15 jours)
- Cuisine équipée (réfrigérateur, hotte, plaques vitrocéramiques, évier inox, meubles)
- Salle d’eau complète (WC, douche, vasque, sèche-serviettes)
- Installation électrique conforme à la norme NF C 15-100
- Système de chauffage (convecteur)
- Ventilation mécanique contrôlée
La fourchette de prix reflète les options de personnalisation retenues : type de menuiseries, orientation des ouvertures, toiture végétalisée ou double pente, terrasse, pergola, parquet chêne massif, pack PMR. La pompe à chaleur est disponible en option. Les raccordements aux réseaux (eau, assainissement) restent à la charge du maître d’ouvrage.



























