20 m2, le best-seller pour tous vos projets.
Le studio de jardin de 20m² est un studio de plain-pied sans permis de construire, offrant la plus grande surface habitable. Parfait pour de la location courte ou longue durée, il convient pour deux personnes ou un étudiant saisonnier. Son montage rapide, sa surface intérieure et son équipement complet en font le best-seller de Greenkub.
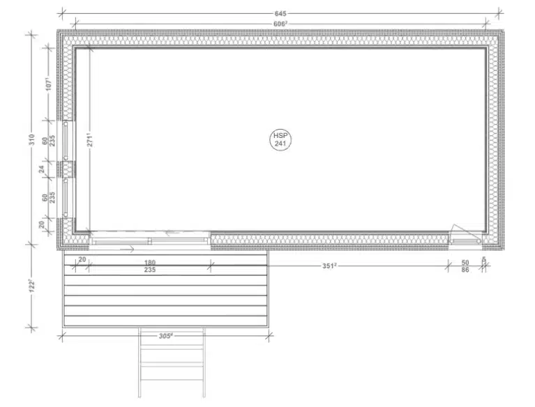
Dimensions
3,1 x 6,45 x 3,3m
20m2
Plain-pied
Isolations & garantie
Ecobrique (RE2020) – Laine de bois
Double vitrage renforcé au gaz argon – Grande hauteur
10 à 15 ans
Fondations
Bois d’épicéa
Platines et pieux d’ancrage
Douglas traité classe 3.b
Électricité & éclairage
Réseau électrique complet
Spot extérieur
LED, Profilé LED
Accéder à la visite virtuelle
Des mètres carrés supplémentaires
pour tous vos besoins
Équipements & finitions
Réfrigérateur top encastré
Hotte aspirante
Plaques de cuisson vitrocéramiques
Évier en acier inoxydable
Placard haut 1 porte
Niche haute ouverte
Placard bas 1 porte
Meuble niche à micro-onde
WC
Sèche serviette 900W
Douche avec receveur extraplat
Meuble vasque céramique blanche
Raccordements
Menuiseries bi-color
(blanc à l’intérieur, anthracite à l’extérieur)
Menuiseries anthracites
Revêtement de sol – Parquet stratifié blanc
Revêtement de sol – Parquet chêne massif (3 coloris)
Pack PMR
Cuisine équipée
Salle d’eau complète
Choix des finitions
Terrasse / Pergola
Toutes les caractéristiques du GK20
3,1 x 6,45 x 3,3
Système Écobrique RE2020
Platines et pieux d’ancrage
3 points
Plain-pied
Spot extérieur
Pin douglas
Convecteur inclus
20 m2
LED, Profilé LED
Bardage bois en pin Douglas traité classe IV
Pompe à chaleur (en option)
50 640€ – 56 520€
Réseau électrique complet
Double vitrage renforcé au gaz argon
De l’idée à votre jardin,
Clé en main.
Le procédé constructif Greenkub
Le solivage constitue une étape essentielle dans l’installation des studios Greenkub. Le bois utilisé pour la structure du Greenkub ainsi que le bardage est certifié 100% PEFC. Conçus pour s’adapter à différents types de terrains, les studios Greenkub s’appuient sur un solivage robuste qui allie esthétisme, praticité et respect de l’environnement.
Des performances isolantes exceptionnelles.
L’éco-brique change la donne en alliant la laine de bois & du bois massif.
Notre système de fondations offre des propriétés mécaniques exceptionnelles ainsi que des bénéfices écologiques respectant les bonnes pratiques d’urbanisme moderne.Il s’adapte à tous les terrains sans terrassement ni dalle en béton, et préserve la porosité du sol.
résistance 7 tonnes
Vis de fondation en acier galvanisé
Le système de vis de 750 mm, enfoncées à une profondeur de 65 cm, est spécialement conçu pour s’adapter aux sols meubles. Ce procédé innovant ne nécessite ni terrassement ni dalle en béton, garantissant une solution durable, écologique et respectueuse de l’environnement.
Personnalisez votre Greenkub
Lors de vos échanges avec l’un de nos designers d’espace, vous étudierez ensemble vos besoins et réaliserez votre étude d’implantation.
Nos modèles personnalisables
Avec Greenkub tout est compris, sauf les soucis
+2500 avis de clients satisfaits
“Belle réalisation avec une équipe efficace, aimable et très professionnelle. Un soin tout particulier est porté sur les finitions. Excellent suivi du projet avec des interlocuteurs disponibles durant les différentes phases du projet, ce qui rassure beaucoup.”
Guillaume Y.
Thierry M.
Magali K.
Lauhle
Benoit S.
“Une équipe de Portugais, sympathiques formidables, soigneux, méticuleux, très travailleurs, surtout par les conditions météo qui ne les ont pas épargnés !!!, froid hivernal, gelée, neige, pluie, grêle, ils ont continué à travailler, un grand bravo à leur courage et leur endurance. J’ajoute que je n’ai pas souvent vu un chantier aussi propre […]”
Pa G.
“Une très belle réalisation au fond de notre jardin que nous aurions dû réaliser bien plus tôt ! 🤩💥💯 1 an et demi que mon épouse m’en parlait…🤣🤦♂️
Le personnel autant dans les bureaux que sur site lors de la construction ont toujours été disponibles, agréables et très professionnels.🌈💖 Un grand bravo […]”
Johann R.
“Nous avons fait réaliser (il y a un an et deux ans) deux Greenkub, un de 20m2 et un de 30m2; nous en avons commandé un troisième de 60m2 qui sera construit en janvier 2022.
Nous sommes pleinement satisfaits des deux premiers qui sont réservés à la location; ceux-ci ont été montés avec rapidité, compétence et efficacité.[…]”
Corinne C.
Matthias L.
Découvrir notre blog
GK20
20m2





